江北核心区隧道口唯一可售新房项目——金基山川江樾正在报名中!
本次金基山川江樾首开一口气推出了300套房源,精装销许均价约40800元/㎡,主力户型建筑面积约143、171、195、252㎡,另外还有两套建筑面积约413.54㎡的天际大平层,总价最高达到了近1867万元!
作为许久没有纯新盘登场的江北核心区隧道口片区,金基山川江樾从亮相之初便被定位为江核的顶豪,不管是配置还是户型在目前的江核改善市场里都是很少见的,所以即便是江核市场降温,金基山川江樾还是引来一些终极改善客的关注。
NO.1 |壹
昨天,江核隧道口唯一可售的新房项目金基山川江樾领取了首批房源的销许,位于A2、A5、A8号楼,共计300套房,其中人才房72套,无住房家庭保障房110套。
本批房源的主力户型建筑面积约143、171、195、252㎡,精装销许均价约40800元/㎡。值得一提的是,按照目前的购房补贴政策,项目还可以享受总价1%的补贴。
另外还有两套建筑面积约413.54㎡的天际大平层,两套房源的总价高达近1867万元。A2、A5号楼的验资金额为150万,A8号楼的验资金额为600万。
无论是面积段还是价格,在江核板块来看都算是有一点小震撼的,但其实想想也很合理,毕竟金基山川江樾本身的定位也是高端改善,对标的可是近期交付的大校场封面级豪宅金基望樾府。
尤其是这个户型面积段,在整个江核的改善市场里都是比较少见的。加上隧道口现在无新房可售,产品稀缺,周边配套也成熟,区位也不错。所以自然还是会有一些人来关注的。
NO.2 |贰
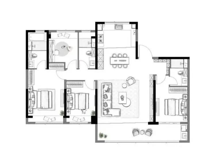
我们可以先来看一下户型,金基山川江樾为四房起步,尺度感和空间感还是比较不错的。
建筑面积约143㎡的四房两厅两卫,四开间朝南,LDK贯通式设计,客厅和南向次卧连接了一个宽景双阳台,主卧为套房设计,带独立卫生间和衣帽间。
建筑面积约171㎡的四房两厅三卫,空间布局和建面约143㎡的比较相似,有区别的是南向连接双阳台的次卧是套房带独立卫生间。
建筑面积约195㎡的四房两厅三卫,这一户型做了大横厅,双套房设计,其中主卧带步入式衣帽间和独立卫生间,卫生间做了双台盆设计。
建筑面积约252㎡的四房三厅三卫,这一户型打造了LDK空间,转角阳台,尺度感拉满。
另外,项目规制了私梯入户的体验,精装品牌引入了嘉格纳、劳芬、当代、意大利威乃达等国际知名品牌,以及配备了科技系统(最终交付以实际情况为准)。
NO.3 |叁
金基山川江樾同样也是采用了金基的“御用班底”:顺景园林、GOA大象、名谷设计。
从外立面看,项目采用全干挂石材+局部干挂铝板+金属线条,南向窗墙比约0.48-0.5,超大面玻璃落地窗,在整个江核板块也是非常罕见的。
项目大门便有约95米宽,在板块属于顶豪水准了。从内部景观来看,金基山川江樾设置双泳池、行政酒廊、7大架空层泛会所、4大景观组团等配置。
金基山川江樾本身体量也非常大,项目光是地上景观面积达到约11.8万㎡了,会所中央公园体系也达到了约2.3万㎡。
项目的会所空间约2200㎡,包括行政酒廊、泳池、健身房、瑜伽室、儿童娱乐区、会客空间等,还做了室内室外双泳池的设计,放眼南京都是比较稀缺的。
另外,项目中心区域有7栋楼打造了约4000㎡的架空层,会所+泛会所结合更具有实用性。
金基山川江樾从产品本身的角度来看,在江核是比较稀缺的高端改善产品,从价格方面来看,均价仅约4万元/㎡,就能入手金基豪宅,性价比也比较高。虽然江核的热度不如此前,但此番金基山川江樾的入市,能否带动江核市场再回温?让我们拭目以待。

新华报业网
Android版
iPhone版